BS Vertriebsbüro GmbH

Silo-Anlagenbau - "Your specialist in silo components"

Pillauer Str. 2 · D-74336 Brackenheim
Fon ++49 (0)7135 12409 · Fax ++49 (0)7135 933599
e-mail: info@bs-vertrieb.de



Silosicherheit
Füllstandsmessung
Messen & Wiegen

  • Über-/Unterdruck-
    klappe Typ SDAK



 

 

 

 

 

 

 

 

 

 

 

 

Über-/Unterdruckklappe SDAK

Für höchste Silo-Sicherheit durch optimalen Druckausgleich

Klappe SDAKAnwendungsgebiete
Die Über-/Unterdruckklappe TYP SDAK ist ein Sicherheitsorgan für Silos, welche pneumatisch befüllt werden.
In Ihrer kombinierten Ausführung können Überdruck sowohl auch Unterdruck bei der pneumatischen Befüllung (entstehend durch Absaugventilatoren oder Wächteneinstürze) ausgeglichen werden.
Der optimale Schutz des Silos ist durch die wartungsfrei Konstruktion der SDAK gewährleistet.

Funktionsweise
Die gewichtsbelasteten, kugelgelagerten Klappen werden durch den Außen- bzw. Silo-Innendruck geöffnet.
Im nichtbeaufschlagten Zustand sind die gummibelegten Klappenteller staubdicht. Bei einem Unterdruck
von mehr als 5 mbar wird die Unterdruckklappe durch den Außendruck geöffnet. Außenluft kann zum Druckausgleich in das Silo strömen. Bei auftretendem Silo-Innendruck öffnet die mit einem verstellbaren Gewicht ausgestattete Klappe. Der Überdruck kann sich über die Klappenöffnung abbauen. Durch die Konstruktion wird gewährleistet, daß der Ansprechdruck sich nicht extrem erhöht und die Austrittsöffnung voll ansprechen kann.

Material/Ausführung
Als Werkstoff stehen Stahl und verschiedene Edelstähle zur Auswahl.
Lackierung: Hammerschlag silbergrau
Standardgrößen: 150 und 300 mm Ø
OPTION: Als Option kann die Klappe zur Signalisierung mit berührungslosen Näherungsschaltern ausgerüstet werden. Für die Verwendung auf Silos und Behältern in geschlossenen Hallen kann die Klappe mit einem Abluftstutzen geliefert werden, so daß die aus dem Silo entweichende Luft durch Rohrleitungen abgeleitet werden kann.

Vorteile
- Weitestgehend wartungsfrei
- Alle Lager dauerhaft fettgeschmiert
- Austrittsöffnung voll wirksam durch gewichtsbelastete Klappenteller
- Überdruck-Bereich stufenlos einstellbar

Technische Daten
Die Über-/Unterdruckklappe wird im Werk bei einer Über-/Unterdruckprüfung auf den jeweils geforderten Wert eingestellt. In der Regel, wenn keine speziellen Forderungen bekannt sind, wird folgende Einstellung vorgenommen:

  Ø 150 mm Ø 300 mm
Überdruck 60 mbar 60 mbar
Unterdruck 5 mbar 5 mbar
Temperatur 80°C 80°C
Luftdurchlass
maximal
2200 m³/h 8500 m³/h
Höhere Einstell- und Temperaturbereiche auf Anfrage.

 

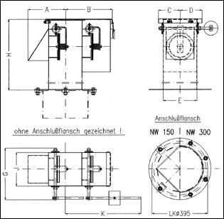
Masszeichnung Über-/Unterdruckklappe TYP SDAK 150/300

Masse Klappe SDAK

Masstabelle Über-/Unterdruckklappe TYP SDAK 150/300

DN A B C D E G H J K
150 265 355 154 154 Ø 240 380 706 240 540
300 427 617 260 260 Ø 323/240 700 902 420 810