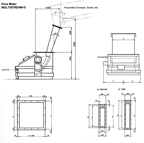
Multistrem G Solids Flow Meter
· Flow rate measurement on the deflection chute principle
· Dust-tight housing
· Compact design
· Cost-effective, simple integration
Application:
MULTISTREAM-G Solids Flow Meters are designed as enclosed in-line measuring systems for continuous acquisition of flow rates from flow rates
1000 t/h (max. 1250 m3/h).
These measuring systems can be used for
- flow rate and consumption measurement
- totalization and
- batching
of pulverized to granular materials with a grain size of up to 30 mm.
Equipped with a controllable prefeeder, MULTISTREAM-G is also vavilable for use as a feed system, upon request. Thanks to its enclosed, rugged design, this measuring system is the answer to limited space and enclosed conveyor routes.
Construction:
The standard equipment of MULTISTREM-G Solids Flow Meters comprises:
- steel plate housing
- guide and measuring chutes
- load cell
- measuring force transmission to load cell arranged outside of material room
- cable junction box
The load cell arranged outside of material room, measuring system can be used at material temperatures of up to 100° C. Higher temperatures ranges are available, upon request.
Functions:
The deflection chute measuring system acquires the flow rate by using a reactive force. Via guide chute, the material is evened out, settled, then guided to the curved measuring/deflection chute, free from shocks.
On the measuring the material is accelerated in radial direction. The resulting reactive force is acquired by the load cell. If higher accuracies are required, check measurements are necessary which allow the measuring system to be calibrated without interrupting material flow.
Requiring presilo to be weighed, this additional equipment is available upon request.
Dimensions:
